Проекты каркасных  домов 1 этаж

"Дачное Счастье"

вы можете выбрать любой готовый проект. 

 также мы готовы сделать для вас индивидуальный проект по вашим эскизам.

Проект "Дачное счастье 1"

Размер: 4х4 метра

Общая площадь: 16 м2

Этажность: 1
Высота потолков 2,5 м.

Проект "Дачное счастье 2"

Размер: 6х4 метров

Общая площадь: 24 м2

Площадь террасы/крыльца: 8 м2

Этажность: 1

Высота потолков: 2,5 м.

Проект "Дачное счастье 3"

Размер: 6х4 метров

Общая площадь: 24 м2

Площадь террасы/крыльца: 8 м2

Этажность: 1

Высота потолков: 2,5 м.

Проект "Дачное счастье 4"

Размер: 5х4 метров

Общая площадь: 20 м2

Этажность: 1

Высота потолков: 2,5 м.

Проект "Дачное счастье 5"

Размер: 5х6 метров

Общая площадь: 30 м2

Площадь террасы/крыльца: 3 м2

Этажность: 1

Высота потолков: 2,5 м.

Проект "Дачное счастье 6"

Размер: 6х3 метров

Общая площадь: 18 м2

Площадь террасы/крыльца: 3 м2

Этажность: 1

Высота потолков: 2,5 м.

Проект "Дачное счастье 7"

Размер: 6х4 метров

Общая площадь: 24 м2

Этажность: 1

Высота потолков: 2,5 м.

Проект "Дачное счастье 8"

Размер: 6х4 метров

Общая площадь: 24 м2

Площадь террасы/крыльца: 6 м2

Этажность: 1

Высота потолков: 2,5 м.

Проект "Дачное счастье 9"

Размер: 6х4 метров

Общая площадь: 24 м2

Площадь террасы/крыльца: 8 м2

Этажность: 1

Высота потолков: 2,5 м.

Проект "Дачное счастье 10"

Размер: 4,5х4 метров

Общая площадь: 18 м2

Этажность: 1

Высота потолков: 2,5 м.

Проект "Дачное счастье 11"

Размер: 6х5 метров

Общая площадь: 30 м2

Площадь террасы/крыльца: 6 м2

Этажность: 1

Высота потолков: 2,5 м.

Проект "Дачное счастье 12"

Размер: 6х6 метров

Общая площадь: 36 м2

Этажность: 1

Высота потолков: 2,5 м.

Проект "Дачное счастье 13"

Размер: 6х6 метров

Общая площадь: 36 м2

Площадь террасы/крыльца: 12 м2

Этажность: 1

Высота потолков: 2,5 м.

Проект "Дачное счастье 14"

Размер: 6х6 метров

Общая площадь: 36 м2

Площадь террасы/крыльца: 9 м2

Этажность: 1

Высота потолков: 2,5 м.

Проект "Дачное счастье 15"

Размер: 6х6 метров

Общая площадь: 36 м2

Площадь террасы/крыльца: 3,4 М2

Этажность: 1

Высота потолков: 2,5 м.

Проект "Дачное счастье 16"

Размер: 6х7,5 метров

Общая площадь: 45 м2

Площадь террасы/крыльца: 4,5 м2

Этажность: 1

Высота потолков: 2,5 м.

Проект "Дачное счастье 17"

Размер: 6х8 метров

Общая площадь: 48 м2

Этажность: 1

Высота потолков: 2,5 м.

Проект "Дачное счастье 18"

Размер: 6х8 метров

Общая площадь: 48 м

Этажность: 1

Высота потолков: 2,5 м.

Проект "Дачное счастье 19"

Размер: 6х8 метров

Общая площадь: 48 м2

Площадь террасы/крыльца: 6,75 м2

Этажность: 1

Высота потолков: 2,5 м.

Проект "Дачное счастье 20"

Размер: 6х9 метров

Общая площадь: 54 м2

Площадь террасы/крыльца: 18 м2

Этажность: 1

Высота потолков: 2,5 м.

Проект "Дачное счастье 21"

Размер: 7,5х9 метров

Общая площадь: 67,5 м2

Площадь террасы/крыльца: 9 м2

Этажность: 1

Высота потолков: 2,5 м.

Проект "Дачное счастье 22"

Размер: 8х9 метров

Общая площадь: 72 м2

Площадь террасы/крыльца: 6 м2

Этажность: 1

Высота потолков: 2,5 м .

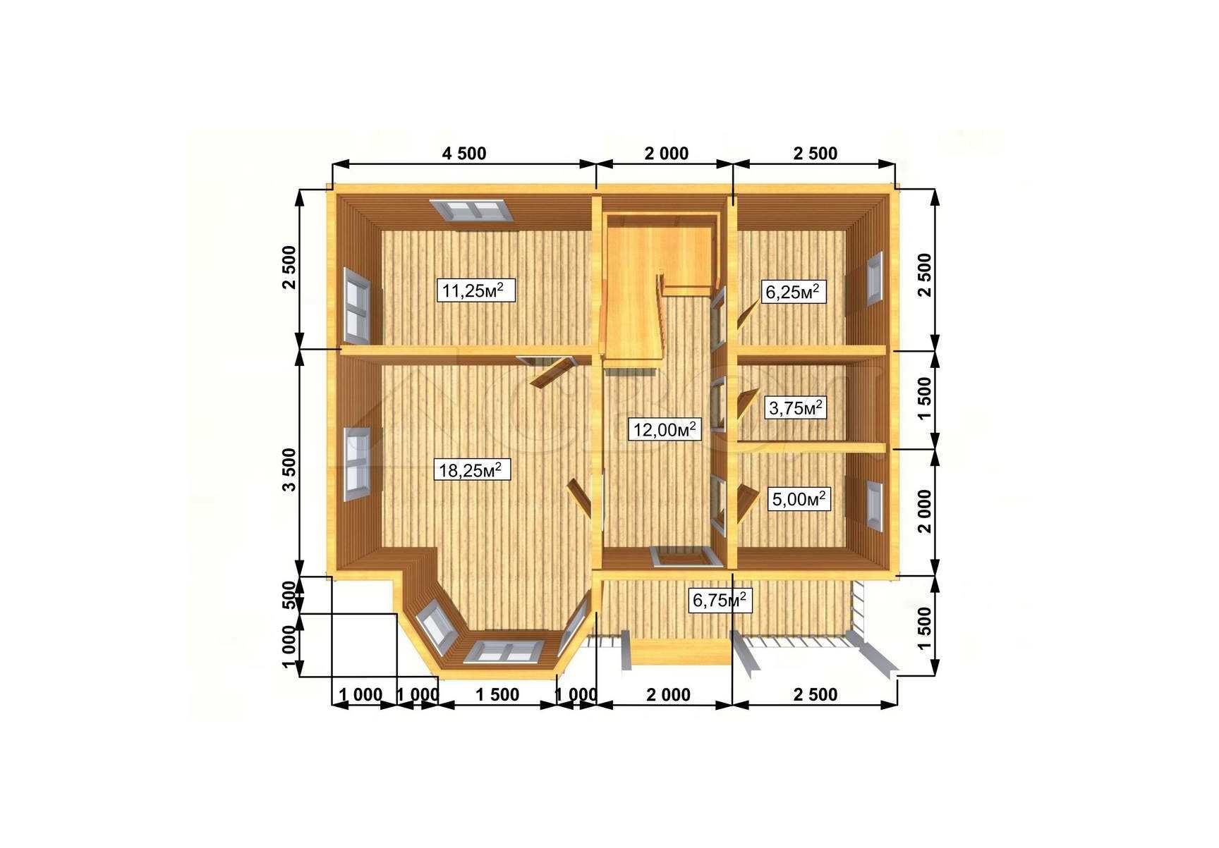
Проект "Дачное счастье 23"

Размер: 8х10 метров

Общая площадь: 80 м2

Площадь террасы/крыльца: 6 м2

Этажность: 1

Высота потолков: 2,5 м.

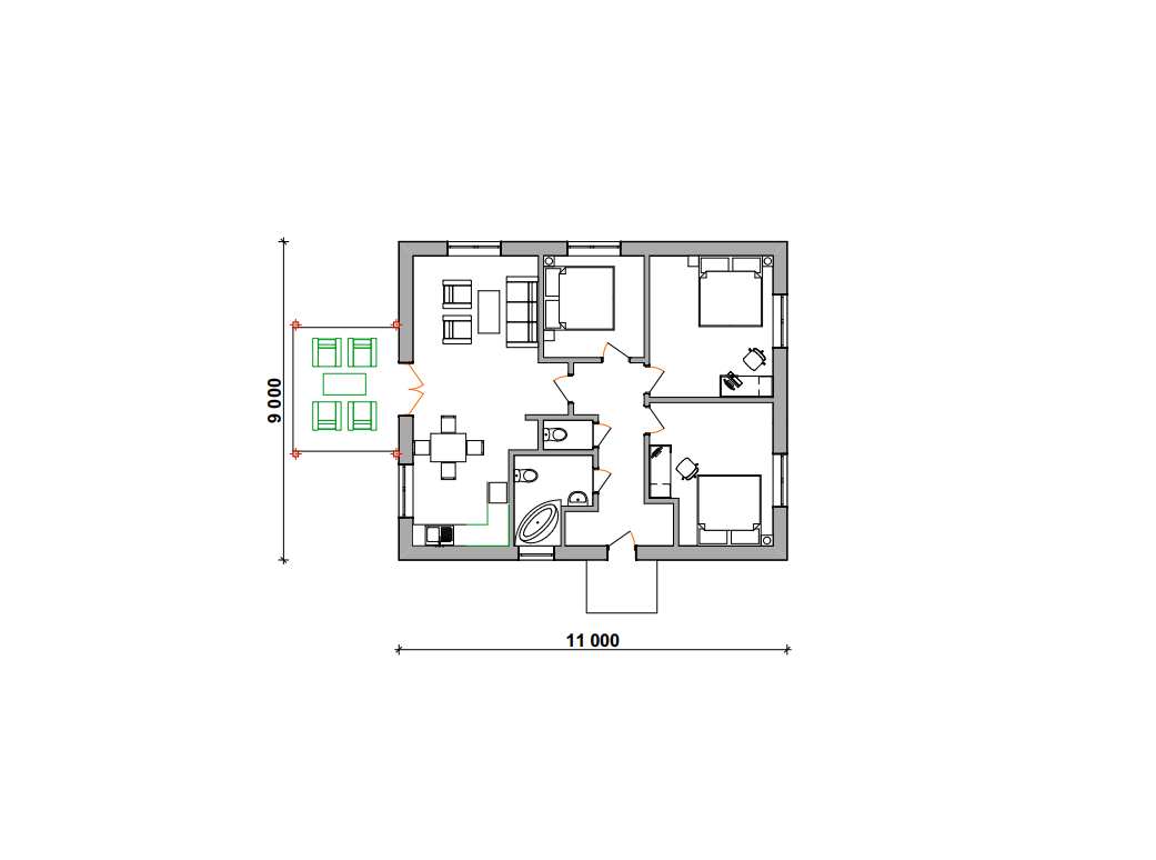
Проект "Дачное счастье 24"

Размер: 9х11 метров

Общая площадь: 99 м2.

Этажность: 1

Высота потолков: 2,5 м.

Проект "Дачное счастье 25"

Размер: 13х11 метров

Общая площадь: 141 м2.

Площадь террасы/крыльца: 37,75 м2

Этажность: 1

Высота потолков: 2,5 м.

Проекты каркасных домов 2 этажа

"Загородный"

вы можете выбрать любой готовый проект. 

 так же мы готовы воплотить любую вашу фантазию и сделать для вас индивидуальный проект по вашим эскизам

Проект "Загородный 1"

Размер: 3×5 м

Общая площадь: 22 м2

Крыльцо: 3 м2

Этажность: 2

Проект "Загородный 2"

Размер: 4×5 м

Общая площадь: 34 м2

Терраса/веранда или крыльцо: 2,5 м2

Этажность: 2


Проект "Загородный 3"

Размер: 4×5 м

Общая площадь: 32 м2

Терраса/веранда или крыльцо: 3,75 м2

Этажность: 2

Проект "Загородный 4"

Размер: 4×5 м

Общая площадь: 30 м2

Терраса/веранда или крыльцо: 3,75 м2

Этажность: 2

Проект "Загородный 5"

Размер: 4×5 м

Общая площадь: 34 м2

Этажность: 2

Проект "Загородный 6"

Размер: 4,5×5,5 м

Общая площадь: 136 м2

Терраса/веранда или крыльцо: 5,25 м2

Этажность: 2

Проект "Загородный 7"

Размер: 4,5×6 м

Общая площадь: 45 м2

Терраса/веранда или крыльцо: 9 м2

Этажность: 2

Проект "Загородный 8"

Размер: 4,5×6 м

Общая площадь: 51 м2

Терраса/веранда или крыльцо: 9 м2

Этажность: 2

Проект "Загородный 9"

Размер: 4,5×6 м

Общая площадь: 54 м2

Терраса/веранда или крыльцо: 9 м2

Этажность: 2

Проект "Загородный 10"

Размер: 4,5×6 м

Общая площадь: 54 м2

Терраса/веранда или крыльцо: 9 м2

Этажность: 2

Проект "Загородный 11"

Размер: 4,5×6 м

Общая площадь: 69 м2

Терраса/веранда или крыльцо: 6 м2

Этажность: 2

Проект "Загородный 12"

Размер: 4×6 м

Общая площадь: 51 м2

Терраса/веранда или крыльцо: 12 м2

Этажность: 2

Проект "Загородный 13"

Размер: 4×6 м

Общая площадь: 40 м2

Этажность: 2

Проект "Загородный 14"

Размер: 4×6 м

Общая площадь: 42 м2

Терраса/веранда или крыльцо: 2 м2

Этажность: 2

Проект "Загородный 15"

Размер: 4×6 м

Общая площадь: 42 м2

Терраса/веранда или крыльцо: 12 м2

Этажность: 2

Проект "Загородный 16"

Размер: 4×6 м

Общая площадь: 48 м2

Терраса/веранда или крыльцо: 12 м2

Этажность: 2

Проект "Загородный 17"

Размер: 5×6 м

Общая площадь: 52,5 м2

Этажность: 2

Проект "Загородный 18"

Размер: 6×6 м

Общая площадь: 51 м2

Терраса/веранда или крыльцо: 9 м2

Этажность:2

Проект "Загородный 19"

Размер: 6×6 м

Общая площадь: 60 м2

Терраса/веранда или крыльцо: 3 м2

Этажность: 2

Проект "Загородный 20"

Размер: 6×6 м

Общая площадь: 63 м2

Этажность: 2

Проект "Загородный 21"

Размер: 6×6 м

Общая площадь: 40,5 м2

Терраса/веранда или крыльцо: 4 м2

Этажность: 2

Проект "Загородный 22"

Размер: 6×6 м

Общая площадь: 51 м2

Этажность: 2

Проект "Загородный 23"

Размер: 6×6 м

Общая площадь: 72 м2

Терраса/веранда или крыльцо: 2,4 м2

Этажность: 2

Проект "Загородный 24"

Размер: 6×6 м

Общая площадь: 48 м2

Терраса/веранда или крыльцо: 3 м2

Этажность: 2

Проект "Загородный 25"

Размер: 6×6 м

Общая площадь: 54 м2

Этажность: 2

Проект "Загородный 26"

Размер: 6×6 м

Общая площадь: 60 м2

Терраса/веранда или крыльцо: 12 м2

Этажность: 2

Проект "Загородный 27"

Размер: 6×6 м

Общая площадь: 60 м2

Терраса/веранда или крыльцо: 9 м2

Этажность: 2

Проект "Загородный 28"

Размер: 6×6 м

Общая площадь: 60 м2

Терраса/веранда или крыльцо: 3 м2

Этажность: 2

Проект "Загородный 29"

Размер: 6×6 м

Общая площадь: 54 м2

Терраса/веранда или крыльцо: 3 м2

Этажность: 2

Проект "Загородный 30"

Размер: 6×6 м

Общая площадь: 60 м2

Терраса/веранда или крыльцо: 12 м2

Этажность: 2

Проект "Загородный 31"

Размер: 6×6 м

Общая площадь: 60 м2

Терраса/веранда или крыльцо: 3,75 м2

Этажность: 2

Проект "Загородный 32"

Размер: 6×6 м

Общая площадь: 65 м2

Этажность: 2

Проект "Загородный 33"

Размер: 6×6 м

Общая площадь: 72 м2

Терраса/веранда или крыльцо: 2,25 м2

Этажность: 2

Проект "Загородный 34"

Размер: 6×7 м

Общая площадь: 73,5 м2

Этажность: 2

Проект "Загородный 35"

Размер: 6×7 м

Общая площадь: 73,5 м2

Терраса/веранда или крыльцо: 8 м2

Этажность: 2

Проект "Загородный 36"

Размер: 6×7 м

Общая площадь: 74 м2

Балкон: 5,25 м2

Терраса/веранда или крыльцо: 5,25 м2

Этажность: 2

Проект "Загородный 37"

Размер: 6×7 м

Общая площадь: 80 м2

Этажность: 2

Проект "Загородный 38"

Размер: 6×7 м

Общая площадь: 84 м2

Балкон: 3 м2

Терраса/веранда или крыльцо: 10 м2

Этажность: 2

Проект "Загородный 39"

Размер: 6×8 м

Общая площадь: 72 м2

Терраса/веранда или крыльцо: 3 м2

Этажность: 2

Проект "Загородный 40"

Размер: 6×8 м

Общая площадь: 80 м2

Терраса/веранда или крыльцо: 5 м2

Этажность: 2

Проект "Загородный 41"

Размер: 6×8 м

Общая площадь: 81 м2

Терраса/веранда или крыльцо: 7,5 м2

Этажность: 2

Проект "Загородный 42"

Размер: 6×8 м

Общая площадь: 72 м2

Терраса/веранда или крыльцо: 3 м2

Этажность: 2

Проект "Загородный 43"

Размер: 6×8 м

Общая площадь: 72 м2

Терраса/веранда или крыльцо: 12 м2

Этажность: 2

Проект "Загородный 44"

Размер: 6×8 м

Общая площадь: 78 м2

Терраса/веранда или крыльцо: 6 м2

Этажность: 2

Проект "Загородный 45"

Размер: 6×8 м

Общая площадь: 78 м2

Терраса/веранда или крыльцо: 6 м2

Этажность: 2

Проект "Загородный 46"

Размер: 6×8 м

Общая площадь: 82 м2

Этажность: 2

Проект "Загородный 47"

Размер: 6×8 м

Общая площадь: 67 м2

Терраса/веранда или крыльцо: 5 м2

Этажность: 2

Проект "Загородный 48"

Размер: 6×8 м

Общая площадь: 80 м2

Терраса/веранда или крыльцо: 6 м2

Этажность: 2

Проект "Загородный 49"

Размер: 6×8 м

Общая площадь: 80 м2

Терраса/веранда или крыльцо: 3 м2

Этажность: 2

Проект "Загородный 50"

Размер: 6×8 м

Общая площадь: 84 м2

Терраса/веранда или крыльцо: 2,5 м2

Этажность: 2

Проект "Загородный 51"

Размер: 6×8 м

Общая площадь: 84 м2

Терраса/веранда или крыльцо: 24 м2

Этажность: 2

Проект "Загородный 52"

Размер: 6×8 м

Общая площадь: 90 м2

Терраса/веранда или крыльцо: 6 м2

Этажность: 2

Проект "Загородный 53"

Размер: 6×9 м

Общая площадь: 90 м2

Терраса/веранда или крыльцо: 10 м2

Этажность: 2

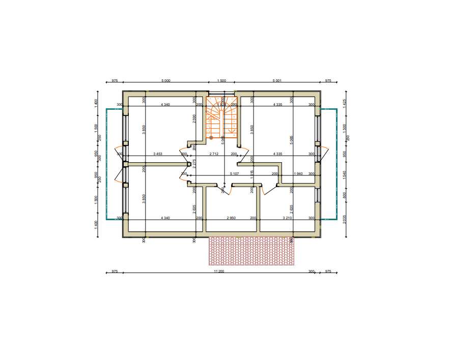
Проект "Загородный 54"

Размер: 13х11 метров

Общая площадь: 141 м2.

Площадь террасы/крыльца: 37,75 м2

Этажность: 1

Высота потолков: 2,5 м2.

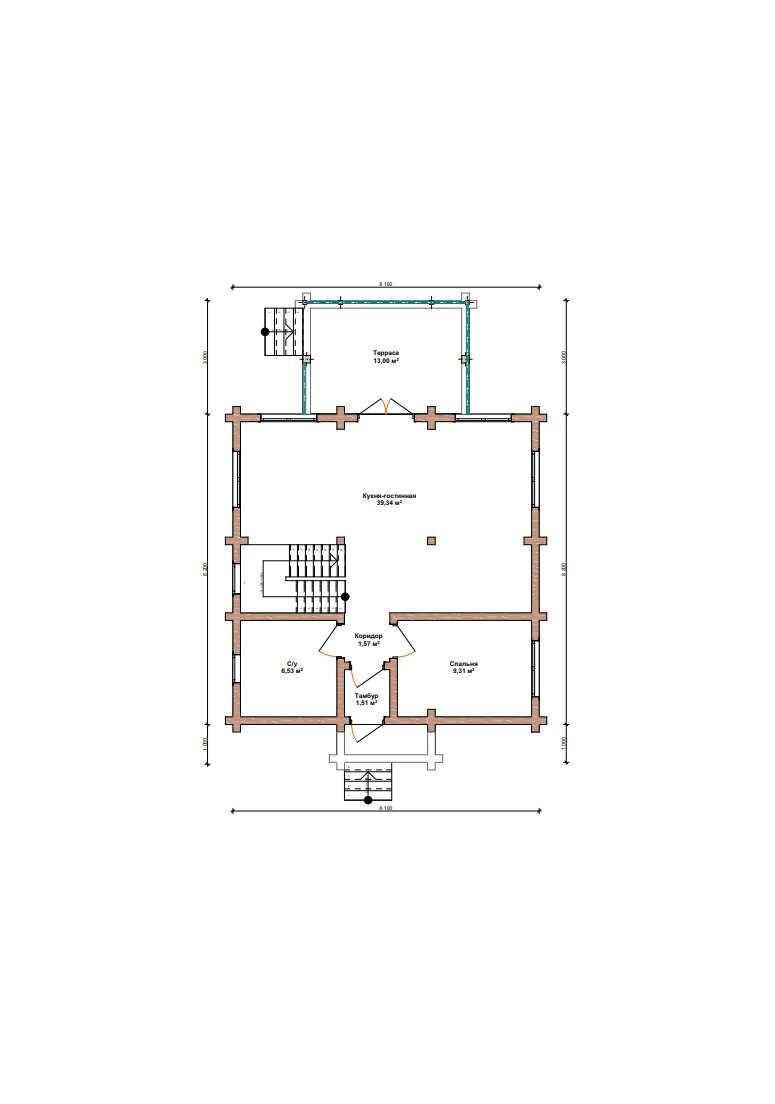
Проект "Загородный 55"

Размер: 6×9 м

Общая площадь: 108 м2

Терраса/веранда или крыльцо: 10 м2

Этажность: 2

Проект "Загородный 56"

Размер: 6×9 м

Общая площадь: 94,5 м2

Этажность: 2

Проект "Загородный 57"

Размер: 6×9 м

Общая площадь: 111 м2

Терраса/веранда или крыльцо: 3 м2

Этажность: 2

Проект "Загородный 58"

Размер: 6×9 м

Общая площадь: 75 м2

Балкон: 6 м2

Терраса/веранда или крыльцо: 9 м2

Этажность: 2

Проект "Загородный 59"

Размер: 6×9 м

Общая площадь: 82,5 м2

Терраса/веранда или крыльцо: 12 м2

Этажность: 2

Проект "Загородный 60"

Размер: 6×9 м

Общая площадь: 88 м2

Терраса/веранда или крыльцо: 6 м2

Этажность: 2

Проект "Загородный 61"

Размер: 6×9 м

Общая площадь: 90 м2

Этажность: 2

Проект "Загородный 62"

Размер: 6×9 м

Общая площадь: 90 м2

Терраса/веранда или крыльцо: 4,5 м2

Этажность: 2

Проект "Загородный 63"

Размер: 7×7 м

Общая площадь: 63 м2

Терраса/веранда или крыльцо: 5,25 м2

Этажность: 2

Проект "Загородный 64"

Размер: 7×7 м

Общая площадь: 87,5 м2

Этажность: 2

Проект "Загородный 65"

Размер: 7,5×7,5 м

Общая площадь: 103 м2

Терраса/веранда или крыльцо: 7 м2

Этажность: 2

Проект "Загородный 66"

Размер: 7×8,5 м

Общая площадь: 102 м2

Терраса/веранда или крыльцо: 3,75 м2

Этажность: 2

Проект "Загородный 67"

Размер: 7,5×8 м

Общая площадь: 94 м2

Терраса/веранда или крыльцо: 2,25 м2

Этажность:2

Проект "Загородный 68"

Размер: 7×9 м

Общая площадь: 91 м2

Этажность: 2

Проект "Загородный 69"

Размер: 7×9 м

Общая площадь: 94 м2

Терраса/веранда или крыльцо: 14 м2

Этажность: 2

Проект "Загородный 70"

Размер: 7×9 м

Общая площадь: 95 м2

Терраса/веранда или крыльцо: 3 м2

Этажность: 2

Проект "Загородный 71"

Размер: 7×9 м

Общая площадь: 98 м2

Балкон: 14 м2

Терраса/веранда или крыльцо: 14 м2

Этажность: 2

Проект "Загородный 72"

Размер: 7×9 м

Общая площадь: 102 м2

Терраса/веранда или крыльцо: 10 м2

Этажность: 2

.

Проект "Загородный 73"

Размер: 7×9 м

Общая площадь: 108 м2

Терраса/веранда или крыльцо: 3 м2

Этажность: 2

Проект "Загородный 74"

Размер: 7×9 м

Общая площадь: 117 м2

Этажность: 2

Проект "Загородный 75"

Размер: 7×9 м

Общая площадь: 132 м2

Терраса/веранда или крыльцо: 18 м2

Этажность: 2

Проект "Загородный 76"

Размер: 7,5×9 м

Общая площадь: 116,5 м2

Терраса/веранда или крыльцо: 5,25 м2

Этажность: 2

Проект "Загородный 77"

Размер: 7,5×9 м

Общая площадь: 118,25 м2

Терраса/веранда или крыльцо: 6,75 м2

Этажность: 2

Проект "Загородный 78"

Размер: 7,5×9,5 м

Общая площадь: 83,5 м2

Терраса/веранда или крыльцо: 5 м2

Этажность: 2

Проект "Загородный 79"

Размер: 7×9 м

Общая площадь: 98 м2

Терраса/веранда или крыльцо: 18 м2

Этажность: 2

Проект "Загородный 80"

Размер: 7×10 м

Общая площадь: 120 м2

Балкон: 6 м2

Терраса/веранда или крыльцо: 6 м2

Этажность: 2

Проект "Загородный 81"

Размер: 8×8 м

Общая площадь: 117,5 м2

Балкон: 5,25 м2

Терраса/веранда или крыльцо: 5,25 м2

Этажность: 2

Проект "Загородный 82"

Размер: 8×8 м

Общая площадь: 112 м2

Балкон: 8 м2

Терраса/веранда или крыльцо: 8 м2

Этажность: 2

Проект "Загородный 83"

Размер: 8×8 м

Общая площадь: 124 м2

Балкон: 16 м2

Терраса/веранда или крыльцо: 20 м2

Этажность: 2

Проект "Загородный 84"

Размер: 8×9 м

Общая площадь: 137 м2

Терраса/веранда или крыльцо: 23 м2

Этажность: 2

Проект "Загородный 85"

Размер: 8×9 м

Общая площадь: 130 м2

Балкон: 6 м2

Терраса/веранда или крыльцо: 8 м2

Этажность: 2

Проект "Загородный 86"

Размер: 8×9,5 м

Общая площадь: 135,5 м2

Балкон: 5,5 м2

Терраса/веранда или крыльцо: 16,75 м2

Этажность: 2

Проект "Загородный 87"

Размер: 8,5×9,5 м

Общая площадь: 151,5 м2

Терраса/веранда или крыльцо: 7,65 м2

Этажность: 2

Проект "Загородный 88"

Размер: 8×10 м

Общая площадь: 124 м2

Балкон: 12 м2

Терраса/веранда или крыльцо: 16 м2

Этажность: 2

Проект "Загородный 89"

Размер: 8×10 м

Общая площадь: 138 м2

Балкон: 10 м2

Терраса/веранда или крыльцо: 10 м2

Этажность: 2

Проект "Загородный 90"

Размер: 8×10 м

Общая площадь: 144,5 м2

Балкон: 8 м2

Терраса/веранда или крыльцо: 8 м2

Этажность: 2

Проект "Загородный 91"

Размер: 9×9 м

Общая площадь: 81 м2

Этажность: 2

Проект "Загородный 92"

Размер: 10×10,5 м

Общая площадь: 189 м2

Терраса/веранда или крыльцо: 10,5 м2

Этажность: 2

Проекты каркасных домов

"Коттедж"

вы можете выбрать любой готовый проект. 

 так же мы готовы воплотить любую вашу фантазию и сделать для вас индивидуальный проект по вашим эскизам

Проект "Коттедж 1"

Размер: 6х6 метров

Общая площадь: 36 м2

Этажность: 1

Высота потолков: 2,5 м2.

Проект "Коттедж 2"

Размер: 6х8 метров

Общая площадь: 48 м2

Площадь террасы: 10,36 М2

Этажность: 1

Высота потолков: 2,5 м2

Проект "Коттедж 3"

Размер: 7,5х10,4 метров

Общая площадь: 78,23 м2

Площадь террасы: 8,97 М2

Этажность: 1

Высота потолков: 2,5 м2.

Проект "Коттедж 4"

Размер: 7,9х18,4 метров

Общая площадь: 145,36 м2

Площадь террасы: 76,13 М2

Этажность: 1

Высота потолков: 2,5 м2.

Проект "Коттедж 5"

Размер: 8х8 метров

Общая площадь: 64 м2

Площадь крыльца: 4,8 М2

Этажность: 1

Высота потолков: 2,5 м2.

Проект "Коттедж 6"

Размер: 8х8,8 метров

Общая площадь: 70,4 м2

Площадь крыльца: 2,25 М2

Площадь террасы: 13,4 М2

Этажность: 1

Высота потолков: 2,5 м2.

Проект "Коттедж 7"

Размер: 8,5х12 метров

Общая площадь: 102 м2

Площадь крыльца: 3 М2

Площадь террасы: 102 М2

Этажность: 1

Высота потолков: 2,5 м2.

Проект "Коттедж 8"

Размер: 8х13 метров

Общая площадь: 94 м2

Площадь крыльца: 2,25 М3

Площадь террасы: 10 М2

Этажность: 1

Высота потолков: 2,5 м2.

Проект "Коттедж 9"

Размер: 9х11 метров

Общая площадь: 99 м2

Площадь террасы: 10 М2

Этажность: 1

Высота потолков: 2,5 м2.

Проект "Коттедж 10"

Размер: 9х11 метров
Общая площадь: 108 м2
Площадь террасы: 11,4 М2
Этажность: 1
Высота потолков: 2,5 м2.

Проект "Коттедж 11"

Размер: 10х10 метров

Общая площадь: 78,36 м2

Площадь террасы: 33,75 М2

Этажность: 1

Высота потолков: 2,5 м2.

Проект "Коттедж 12"

Размер: 10,36х16,63 метров

Общая площадь: 172,28м2

Этажность: 1

Высота потолков: 2,5 м2.

Проект "Коттедж 13"

Размер: 10,7х12,2 метров

Общая площадь: 113,76 м2

Этажность: 1

Высота потолков: 2,5 м2.

Проект "Коттедж 14"

Размер: 6х6 метров

Общая площадь: 72 м2

Площадь крыльца: 4,57 М2

Этажность: 2

Высота потолков: 2,5 м2.

Проект "Коттедж 15"

Размер: 6х8 метров

Общая площадь: 96 м2

Площадь террасы: 5,5 М2

Этажность: 2

Высота потолков: 2,5 м2.

Проект "Коттедж 16"

Размер: 6х8 метров

Общая площадь: 96 м2

Этажность: 2

Высота потолков: 2,5 м2.

Проект "Коттедж 17"

Размер: 7,4х12,6 метров

Общая площадь: 186,48 м2

Площадь террасы: 17,64 М2

Площадь балкона: 17,64 М2

Этажность: 2

Высота потолков: 2,5 м2.

Проект "Коттедж 18"

Размер: 7,5х8,2 метров

Общая площадь: 110,23 м2

Этажность: 2

Высота потолков: 2,5 м2.

Проект "Коттедж 19"

Размер: 7,8х11,2 метров

Общая площадь: 130,65 м2

Площадь террасы: 19,35 М2

Этажность: 2

Высота потолков: 2,5 м2.

Проект "Коттедж 20"

Размер: 7,8х11,2 метров

Общая площадь: 174,72 м2

Площадь террасы: 13,44 М2

Площадь балкона: 3,96 М2

Этажность: 2

Высота потолков: 2,5 м2.

Проект "Коттедж 21"

Размер: 8х8 метров

Общая площадь: 112 м2

Площадь террасы: 8 М2

Площадь балкона:8 М2

Этажность: 2

Высота потолков: 2,5 м2.

Проект "Коттедж 22"

Размер: 8х8 метров

Общая площадь: 116м2

Площадь террасы: 48 М2

Этажность: 2

Высота потолков: 2,5 м2.

Проект "Коттедж 23"

Размер: 8,1х8,1 метров

Общая площадь: 131,22 м2

Площадь террасы: 13 М2

Площадь балкона: 6,25 М2

Этажность: 2

Высота потолков: 2,5 м2.

Проект "Коттедж 24"

Размер: 8,5х11,5 метров

Общая площадь: 195,5 м2

Площадь крыльца: 4,86 М2

Площадь балкона: 6,05 М2

Площадь балкона: 6,05 М2

Этажность: 2

Высота потолков: 2,5 м2.

Проект "Коттедж 25"

Размер: 8,3х8,8 метров

Общая площадь: 146,08 м2

Площадь крыльца: 3,3 М2

Площадь крыльца: 1,73 М2

Этажность: 2

Высота потолков: 2,5 м2.

Проект "Коттедж 26"

Размер: 8,6х9,8 метров

Общая площадь:126,16 м2

Площадь крыльца: 7,6 М2

Площадь террасы: 9,2 М2

Площадь балкона: 9,2 М2

Этажность: 2

Высота потолков: 2,5 м2.

Проект "Коттедж 27"

Размер: 8х10 метров

Общая площадь: 126,8 м2

Площадь крыльца: 4 М2

Этажность: 2

Высота потолков: 2,5 м2.

Проект "Коттедж 28"

Размер: 8,8х9,4 метров

Общая площадь: 141,8 м2

Площадь крыльца: 4,6 М2

Площадь террасы: 17,8 М2

Площадь балкона: 13,5 М2

Этажность: 2

Высота потолков: 2,5 м2.

Проект "Коттедж 29"

Размер: 9,4х9,8 метров

Общая площадь: 130 м2

Площадь крыльца: 7,64 М2

Площадь террасы: 9,66 М2

Площадь балкона: 9,66 М2

Этажность: 2

Высота потолков: 2,5 м2.

Проект "Коттедж 30"

Размер: 9х9 метров

Общая площадь: 76,5 м2

Площадь крыльца: 4,5 М2

Этажность: 2

Высота потолков: 2,5 м2.

Проект "Коттедж 31"

Размер: 10х10 метров

Общая площадь: 170 м2

Площадь крыльца: 7,65 М2

Площадь террасы: 25 М2

Этажность: 2

Высота потолков: 2,5 м2.

Проект "Коттедж 32"

Размер: 12,2х12,2 метров

Общая площадь: 297,68 м2

Этажность: 2

Высота потолков: 2,5 м2.